immobilimpresa

Locale commerciale/Negozio in Vendita Roncà

106.875 calcola mutuo

Mq. 235

4 locali

Clicca sull'immagine per ingrandirla

Roncà

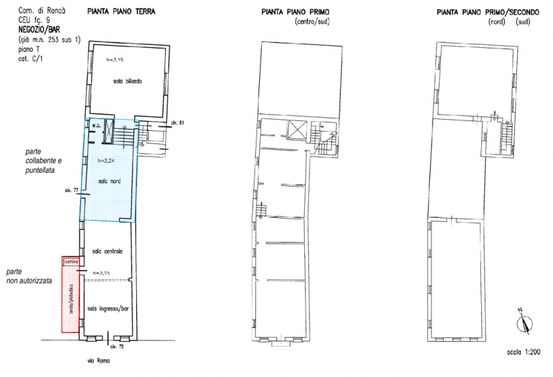
- Roncà (VR) Via Roma 77
Immobilimpresa 10984219Riferimento Agenzia GB18062026 – RONCA' (VR) VIA ROMA 77 - Piena proprietà di negozio/bar a piano terra e abitazione ai piani superiori con area urbana e fabbricato d’epoca diruto. Immobile soggetto a Esec. Imm. n.ro 15... Vedi di più
Prezzo: € 106.875   Fai una controproposta

Hai un immobile simile da vendere? Vendine uno uguale

La responsabilità del contenuto dell'annuncio fa capo all'inserzionista, non forniamo garanzie per le informazioni pubblicate da terzi

Contatta per l'annuncio

Ricevi più proposte: le caratteristiche dell'immobile che stai cercando ed i tuoi recapiti, verranno inviati alle agenzie immobiliari della zona di tuo interesse

Registrandoti a questo servizio dichiari di aver letto e di accettare l'Informativa alla Privacy

* I campi con l'asterisco sono obbligatori

CONSULENZA Prestiti
Personali e MUTUO