immobilimpresa

Ufficio in Vendita Bologna

500.000 calcola mutuo

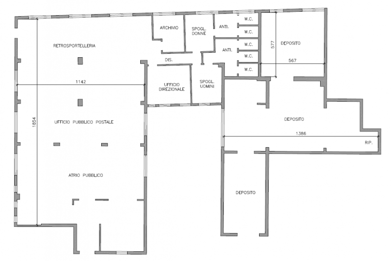
Mq. 477

Clicca sull'immagine per ingrandirla

Massarenti

- Bologna (BO) via Pizzardi
Immobilimpresa 10947558Riferimento Agenzia DIR500ASE – BOLOGNA - adiacenze via Palagio Palagi. Opportunità imperdibile per investitori. Nelle immediate vicinanze dell’Ospedale Sant’Orsola, in zona strategica. Al piano terreno di uno edi... Vedi di più
Prezzo: € 500.000   Fai una controproposta

Hai un immobile simile da vendere? Vendine uno uguale

La responsabilità del contenuto dell'annuncio fa capo all'inserzionista, non forniamo garanzie per le informazioni pubblicate da terzi

Contatta per l'annuncio

Ricevi più proposte: le caratteristiche dell'immobile che stai cercando ed i tuoi recapiti, verranno inviati alle agenzie immobiliari della zona di tuo interesse

Registrandoti a questo servizio dichiari di aver letto e di accettare l'Informativa alla Privacy

* I campi con l'asterisco sono obbligatori

CONSULENZA Prestiti
Personali e MUTUO