immobilimpresa

Locale commerciale/Negozio in Vendita Bannio Anzino

60.000 calcola mutuo

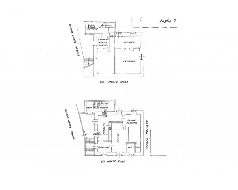
Mq. 163

9 locali

Clicca sull'immagine per ingrandirla

Bannio Anzino

(VB) Via Monte Rosa, 50/A, 28871 Bannio Anzino VB, Italia
Immobilimpresa 10947283Riferimento Agenzia 2638156 – riferimento: bp1056 La porzione immobiliare è sita nella frazione Pontegrande, a 1,5 km dal centro di Bannio Anzino (VB). Ci troviamo in via Monte Rosa, in un’area ben visibile e facilme... Vedi di più
Prezzo: € 60.000   Fai una controproposta

Hai un immobile simile da vendere? Vendine uno uguale

La responsabilità del contenuto dell'annuncio fa capo all'inserzionista, non forniamo garanzie per le informazioni pubblicate da terzi

Contatta per l'annuncio

Ricevi più proposte: le caratteristiche dell'immobile che stai cercando ed i tuoi recapiti, verranno inviati alle agenzie immobiliari della zona di tuo interesse

Registrandoti a questo servizio dichiari di aver letto e di accettare l'Informativa alla Privacy

* I campi con l'asterisco sono obbligatori

CONSULENZA Prestiti
Personali e MUTUO