immobilimpresa

Locale commerciale/Negozio in Vendita Castel Maggiore

69.000 calcola mutuo

Mq. 100

1 locali

Clicca sull'immagine per ingrandirla

Castel Maggiore

(BO) Via Magistrini, 3, 40013 Castel Maggiore BO, Italia
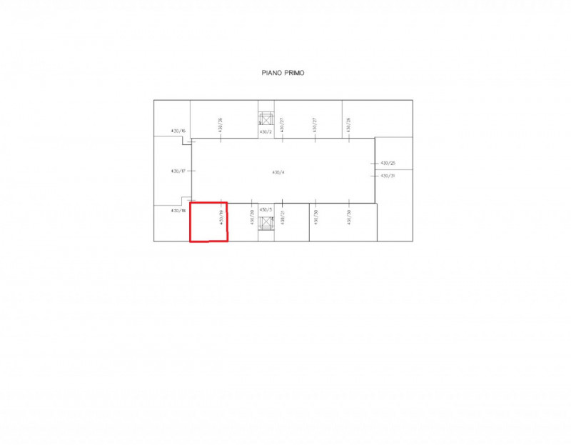
Immobilimpresa 10745481Riferimento Agenzia 2521003 – Proponiamo in vendita un'unità immobiliare al grezzo, situata al primo piano di un edificio a destinazione mista in Via Giuseppe Di Vittorio – Castel Maggiore (BO). La superficie è... Vedi di più
Prezzo: € 69.000   Fai una controproposta

Hai un immobile simile da vendere? Vendine uno uguale

La responsabilità del contenuto dell'annuncio fa capo all'inserzionista, non forniamo garanzie per le informazioni pubblicate da terzi

Contatta per l'annuncio

Ricevi più proposte: le caratteristiche dell'immobile che stai cercando ed i tuoi recapiti, verranno inviati alle agenzie immobiliari della zona di tuo interesse

Registrandoti a questo servizio dichiari di aver letto e di accettare l'Informativa alla Privacy

* I campi con l'asterisco sono obbligatori

CONSULENZA Prestiti
Personali e MUTUO