immobilimpresa

Capannone in Vendita Muros

216.879 calcola mutuo

Mq. 9465

7 locali

Clicca sull'immagine per ingrandirla

Muros

(SS) Zona industriale, 07030 Muros SS, Italia
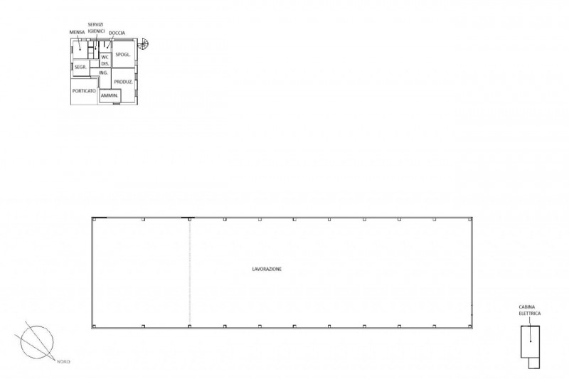
Immobilimpresa 10708387Riferimento Agenzia 2536074 – Quest’immobile viene venduto tramite asta online. Complesso immobiliare composto da capannone industriale, palazzina uffici e alloggio custode, sito in Muros (SS), nella zona industriale-artigi... Vedi di più
Prezzo: € 216.879   Fai una controproposta

Hai un immobile simile da vendere? Vendine uno uguale

La responsabilità del contenuto dell'annuncio fa capo all'inserzionista, non forniamo garanzie per le informazioni pubblicate da terzi

Contatta per l'annuncio

Ricevi più proposte: le caratteristiche dell'immobile che stai cercando ed i tuoi recapiti, verranno inviati alle agenzie immobiliari della zona di tuo interesse

Registrandoti a questo servizio dichiari di aver letto e di accettare l'Informativa alla Privacy

* I campi con l'asterisco sono obbligatori

CONSULENZA Prestiti
Personali e MUTUO