immobilimpresa

Locale commerciale/Negozio in Vendita Pesaro

137.160 calcola mutuo

Mq. 115

4 locali

Clicca sull'immagine per ingrandirla

Pesaro

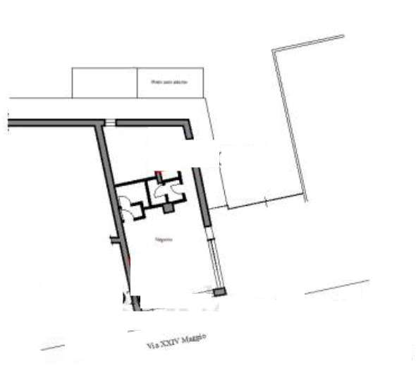
(PU) Via XXIV Maggio, 109-111
Immobilimpresa 10686420Riferimento Agenzia 23/04/2026 ps3P – Trattasi di bene costituito da n. 3 immobili, composto da un negozio e un posto auto esterno situati al piano terra ed un garage posto al piano interrato. A: L'unità immobiliare destinata ... Vedi di più
Prezzo: € 137.160   Fai una controproposta

Hai un immobile simile da vendere? Vendine uno uguale

La responsabilità del contenuto dell'annuncio fa capo all'inserzionista, non forniamo garanzie per le informazioni pubblicate da terzi

Contatta per l'annuncio

Ricevi più proposte: le caratteristiche dell'immobile che stai cercando ed i tuoi recapiti, verranno inviati alle agenzie immobiliari della zona di tuo interesse

Registrandoti a questo servizio dichiari di aver letto e di accettare l'Informativa alla Privacy

* I campi con l'asterisco sono obbligatori

CONSULENZA Prestiti
Personali e MUTUO